Camilluccia 693

Camilluccia 693

Scroll down

Camilluccia 693

ANNO 2020-25
POSIZIONE ROMA (IT)
TIPO COMPLESSO RESIDENZIALE - NUOVA COSTRUZIONE
CAPO PROGETTO CARLO CASTELLI

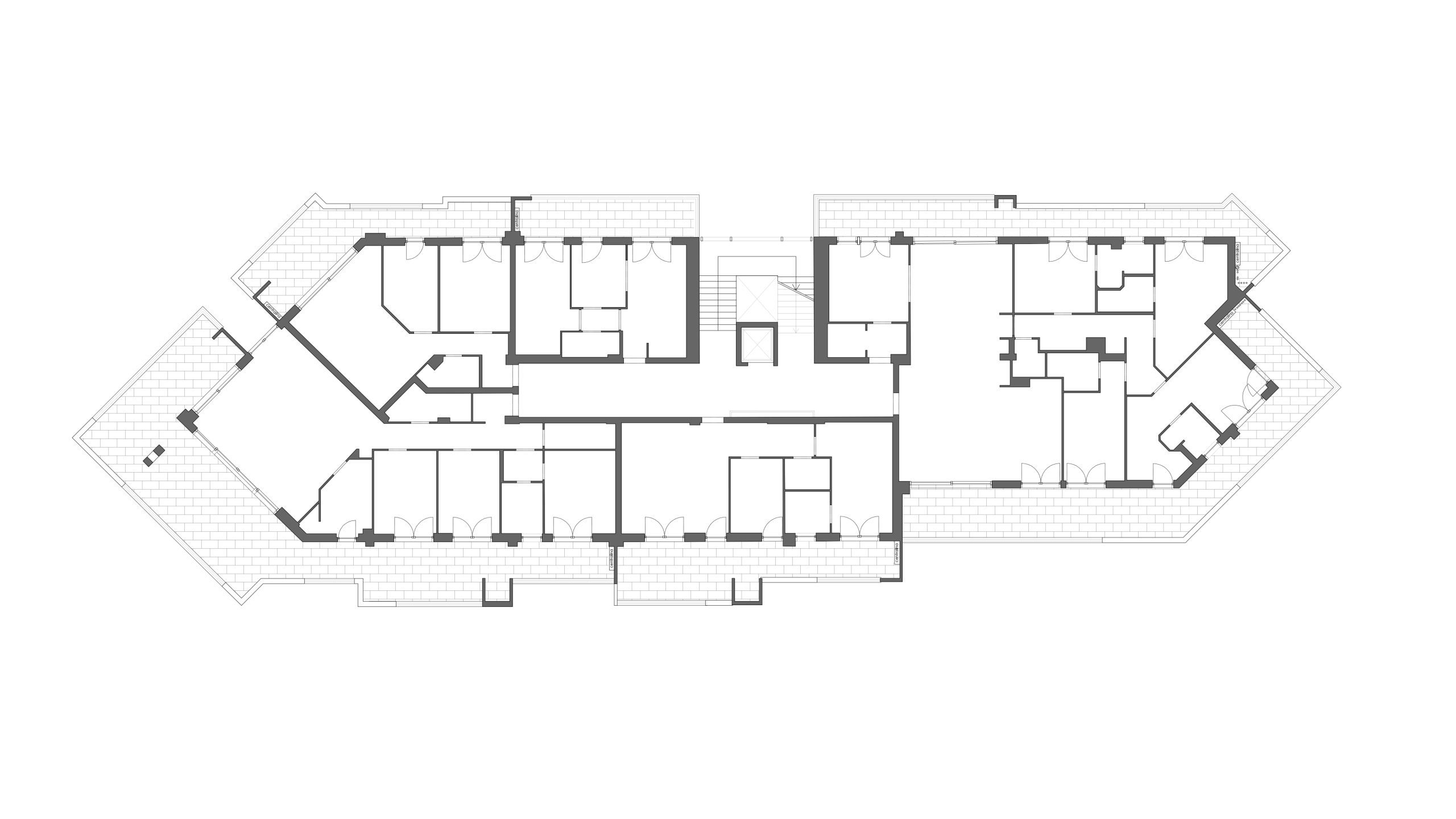
Il progetto ha previsto la demolizione di un edificio adibito a uffici e la costruzione di un nuovo complesso residenziale ad alta efficienza energetica. L’edificio comprende 32 appartamenti di varie metrature (da 3 a 10 locali), distribuiti su 6 piani fuori terra per una superficie di circa 3.500 metri quadrati, oltre a 3 piani interrati destinati a garage e cantine. La pendenza del terreno ha reso necessaria la realizzazione di fondazioni a plinto profonde fino a 22 metri. Il concept architettonico si ispira a una nave che domina la valle: nel rispetto dei vincoli del sito, le terrazze a sbalzo creano viste variabili e dinamiche. Il progetto, con un budget complessivo di 11 milioni di euro, è stato gestito dallo studio, dall’iter amministrativo alla progettazione preliminare, definitiva ed esecutiva, fino alla direzione lavori.

Collaboratori esterni: strutturista VB Ingegneri Associati.

CLICCA A SINISTRA E A DESTRA DEL DISEGNO PER NAVIGARE

Camilluccia 693

ANNO 2020-25
POSIZIONE ROMA (IT)
TIPO COMPLESSO RESIDENZIALE - NUOVA COSTRUZIONE
CAPO PROGETTO CARLO CASTELLI

Il progetto ha previsto la demolizione di un edificio adibito a uffici e la costruzione di un nuovo complesso residenziale ad alta efficienza energetica. L’edificio comprende 32 appartamenti di varie metrature (da 3 a 10 locali), distribuiti su 6 piani fuori terra per una superficie di circa 3.500 metri quadrati, oltre a 3 piani interrati destinati a garage e cantine. La pendenza del terreno ha reso necessaria la realizzazione di fondazioni a plinto profonde fino a 22 metri. Il concept architettonico si ispira a una nave che domina la valle: nel rispetto dei vincoli del sito, le terrazze a sbalzo creano viste variabili e dinamiche. Il progetto, con un budget complessivo di 11 milioni di euro, è stato gestito dallo studio, dall’iter amministrativo alla progettazione preliminare, definitiva ed esecutiva, fino alla direzione lavori.

Collaboratori esterni: strutturista VB Ingegneri Associati.

CLICCA A SINISTRA E A DESTRA DEL DISEGNO PER NAVIGARE