Camilluccia 693

Camilluccia 693

Scroll down

Camilluccia 693

YEAR 2020 - 25
LOCATION ROME (IT)
TYPE COMPLESSO RESIDENZIALE - NUOVA COSTRUZIONE
PROJECT LEADER CARLO CASTELLI

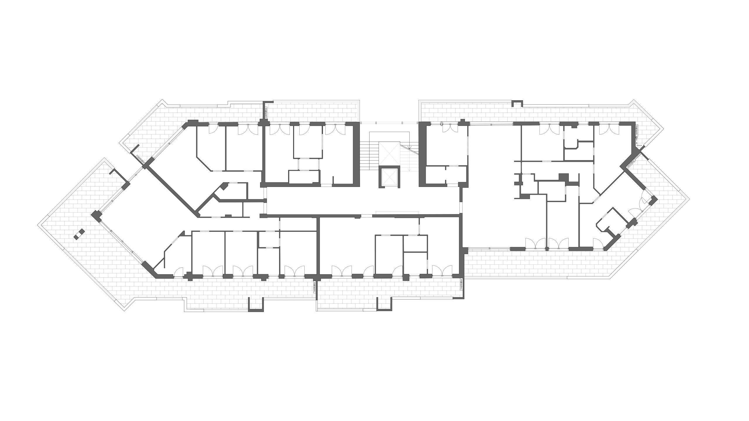
The project involved the demolition of an office building and the construction of a new energy-efficient residential complex. The building comprises 32 apartments of various sizes (from 3 to 10 rooms), spread over 6 floors above ground covering approximately 3,500 square metres, as well as 3 basement floors for garages and cellars. The steep terrain made it necessary to construct deep plinth foundations up to 22 metres deep. The architectural concept is inspired by a ship towering over the valley: while respecting the site constraints, the cantilevered terraces create variable and dynamic views. The project, with a total budget of €11 million, was managed by the firm—from the administrative process to the preliminary, final, and executive design phases, through to construction management.

External collaborators: Structural engineers VB Ingegneri Associati.

CLICK ON THE LEFT AND RIGHT OF THE DRAWING TO NAVIGATE

Camilluccia 693

YEAR 2020 - 25
LOCATION ROME (IT)
TYPE COMPLESSO RESIDENZIALE - NUOVA COSTRUZIONE
PROJECT LEADER CARLO CASTELLI

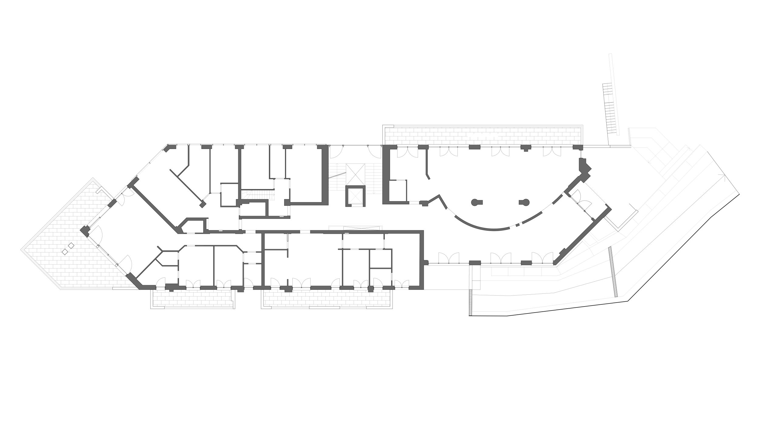
The project involved the demolition of an office building and the construction of a new energy-efficient residential complex. The building comprises 32 apartments of various sizes (from 3 to 10 rooms), spread over 6 floors above ground covering approximately 3,500 square metres, as well as 3 basement floors for garages and cellars. The steep terrain made it necessary to construct deep plinth foundations up to 22 metres deep. The architectural concept is inspired by a ship towering over the valley: while respecting the site constraints, the cantilevered terraces create variable and dynamic views. The project, with a total budget of €11 million, was managed by the firm—from the administrative process to the preliminary, final, and executive design phases, through to construction management.

External collaborators: Structural engineers VB Ingegneri Associati.

CLICK ON THE LEFT AND RIGHT OF THE DRAWING TO NAVIGATE